Ort

Järfälla

Typ

Villa

Totalarea

244 m2

Järfälla

Kronvägen 41

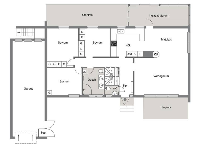
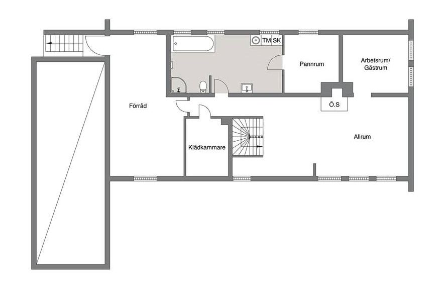
Välkommen till ett rymligt hem i omtyckta Skälby, med välplanerad planlösning, flera sovrum och stora sociala ytor som passar både vardag och umgänge.De generösa biytorna ger extra möjligheter, oavsett om du vill skapa ett hobbyrum, hemmakontor eller praktisk förvaring.

Den gröna och väl tilltagna tomten erbjuder gott om plats för trädgård, uteplatser och avkoppling i en trivsam miljö.

Läget i Skälby, Järfälla, kombinerar lugnet från villakvarteren med närhet till service, skolor, natur och goda kommunikationer, ett hem som bjuder på både rymd och trivsel.

Ansök nu

Är du intresserad av bostaden? Kontakta oss så återkommer vi snarast.

Har du fast inkomst?
Har du några betalningsanmärkningar?