Ort

Spånga

Typ

Radhus

Rum

4

Totalarea

119 m2

Spånga

Småbjörksvägen 45

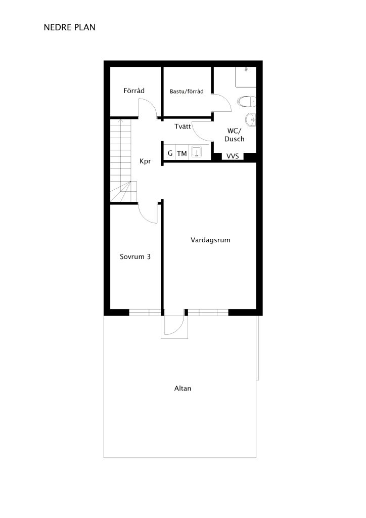
Välkommen till detta trivsamma radhus från 1987 med fyra rum och en genomtänkt planlösning som skapar balans mellan gemenskap och avskildhet.

De ljusa och öppna ytorna ger en luftig känsla, medan biytan erbjuder praktiskt extra utrymme för förvaring, hobby eller arbete.

Läget mitt i Bromsten ger närhet till service, skolor, grönområden och goda kommunikationer, ett bekvämt och välplanerat hem som passar både familjen och paret som söker trivsel och funktion i lugna omgivningar.

Ansök nu

Är du intresserad av bostaden? Kontakta oss så återkommer vi snarast.

Har du fast inkomst?
Har du några betalningsanmärkningar?